The Homstead
Project Scope
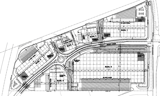
Entitlement
Location
NWC of Archibald Ave and Providence Way, Eastvale, CA 92880
Building Square Footage
996,156 square feet
Project Description
The Homestead consisted of 46 Net Acres of Industrial Zoned Land for Light Industrial & Industrial Park. Orbis worked with the city of Eastvale to fully entitle the project, which was sold on December 2020. The future Limonite extension across the Cucamonga Creek Bridge that will connect Chino and Eastvale will run directly through the property, it is expected to break ground in 3Q 2023.








